
ABB变频器调试(含PLC程序和电气图纸)ABBACS510变频器的调试(1.1kW----110kW)一、ACS510变频器的控制盘1.助手型控制盘(见《ACS510-01用户手册》05年版P27~......
ABB变频器调试(含PLC程序和电气图纸)
ABBACS510变频器的调试
(1.1kW----110kW)
一、ACS510变频器的控制盘
1.助手型控制盘
(见《ACS510-01用户手册》05年版P27~P35)
下图描述了助手型控制盘的按键功能和显示信息。

2.基本型控制盘
(见《ACS510-01用户手册》05年版P36~P40)
下图描述了基本型控制盘的按键功能和显示信息。

二、在默认宏下的基本调试
下面调试均以助手型控制盘的ABB标准宏为例。
①在变频器通电之前,检查确认功率电缆、控制端子的接线正确无误。下图的是ABB标准宏的端子接线与定义图。

②变频器通电后,在默认的ABB标准宏(9902=1)下,按键切换至本地控制模式下,此时液晶显示屏左上角显示“LOC”。
③按MENU/ENTER键进入参数菜单,根据电机铭牌上的参数在99组设置电机参数:
9905(电机额定电压)
9906(电机额定电流)
9907(电机额定频率)
9908(电机额定转速)
9909(电机额定功率)
④按下START键起动电机。再按住△或▽键调整给定频率,观察液晶显示屏左上角,显示变频器和电机的旋转状态标记“
(正转)”或“(反转)”在旋转,同时电机旋转。
⑤若电机转向与要求不一致,通常有以下两种方法改变转向:
改变任意两相电机电缆;(推荐使用)
更改参数1003,把原先FORWARD(正转)改为REVERSE(反转),原先REVERSE(反转)改为FORWARD(正转)。(建议不用)
⑥按下STOP键停止电机,等到显示屏的旋转状态标记“(正转)”或“(反转)”停止转动后,再按键切换至远程控制模式下,此时液晶显示屏左上角显示“REM”。
⑦送一个外部起动信号至DI1,使电机起动。再调整连接于AI1的模拟电位器,改变给定速度,观察液晶显示屏左上角,显示变频器和电机的旋转状态标记“(正转)”或“(反转)”在旋转,同时电机旋转。
⑧送一个外部换向信号至DI2,电机将换向旋转。
⑨送一个外部恒速信号至DI3,电机将以5Hz恒速旋转。
⑩若想监视所有端子的信号状态,按MENU/ENTER键进入参数菜单,再进入01组运行参数组,监视以下参数:
0118(DI1~3状态)=×××(二进制)
0119(DI4~6状态)=×××(二进制)
0120(AI1)=0.0~100.0%
0121(AI2)=0.0~100.0%
0122(RO1~3状态)=×××(二进制)
0123(RO4~6状态)=×××(二进制)
0124(AO1)=0.0~20.0mA
0125(AO2)=0.0~20.0mA
三、参数保存与调用、恢复出厂设置的操作
在调试变频器的时候,有时需要检验变频器硬件和软件是否完好,并且要求最后调用原有参数。这时调试人员可以按以下步骤操作:
①保存原有参数。在本地控制模式下,按MENU/ENTER键进入参数菜单,设置参数:
9902(应用宏)=-1(用户宏1存储)把原有参数保存在用户宏1,以备调用。
②恢复出厂设置调试。设置参数:
9902(应用宏)=1(ABB标准宏)再做上面第二部分介绍的基本调试,以检验变频器硬件和软件是否完好。
③调用原有参数。设置参数:
9902(应用宏)=0(用户宏1上载)调用原有参数。
四、常用参数
调试ACS510变频器的常用参数,除了上面提到的99组、01组参数外,还有以下参数也常用到,相关参数可根据应用需求进行相应的定义。
10组:输入指令
1001(外部1命令)=0~14
1002(外部2命令)=0~14
1003(转向)=1~3
11组:给定选择
1101(控制盘给定)=1~2
1102(外部控制选择)=-6~12
1103(给定值1选择)=0~17
13组:模拟输入
1301(AI1下限)=0.0~100.0%
1302(AI1上限)=0.0~100.0%
1304(AI2下限)=0.0~100.0%
1305(AI2上限)=0.0~100.0%
14组:继电器输出
1401(继电器输出1)=0~36,45,46
1402(继电器输出2)=0~36,45,46
1403(继电器输出3)=0~36,45,46
15组:模拟输出
1501(AO1赋值)=99~199
1504(AO1下限)=0.0…20.0mA
1505(AO1上限)=0.0…20.0mA
1507(AO2赋值)=99~199
1510(AO2下限)=0.0…20.0mA
1511(AO2上限)=0.0…20.0mA
16组:系统控制
1601(运行允许)=0~7,-1~-6
20组:限幅
2007(最小频率)=-500.0~500.0.0Hz
2008(最大频率)=0.0~500.0Hz
21组:起动/停止
2101(起动方式)=1~5
2102(停车方式)=1(自由停车),2(积分停车)
22组:加速/减速
2202(加速时间1)=0.0~1800.0s
2203(减速时间1)=0.0~1800.0s
26组:电机控制
2601(磁通优化)=0(禁止),1(允许)
五、报警与故障
在调试的过程中,若变频器出现报警或故障信号,请参阅《ACS510-01用户手册》05年版“故障诊断”部分(P193~203)。
很多报警或故障是由外围引入变频器的信号不正确导致的,这些信号包括连接到变频器电源质量、开关信号、模拟信号、脉冲信号以及通讯信号等等。所以一般首先检查这些信号是否正确;再根据设备的工艺要求检查参数设置是否正确;最后才可能是硬件故障,这时可联系供应商寻求技术支持,帮助排障。
六、补充说明
软件版本为206A的ACS510存在一些问题:在某些情况下变频器会产生过流故障(F001),具体现象描述如下:
1.当变频器从额定频率,额定负载运行状态开始减速到40Hz时,变频器会由于F001过流故障而停机。(例如当变频器在PID控制模式下减速时)
2.当变频器从额定频率,额定负载运行状态积分停车时,会发生F001故障。
3.当变频器在接近额定点的状态运行几分钟后,会发生F001故障。如果客户遇到了这个故障,请告诉他们取消磁通优化功能
(设置参数2601=0)。
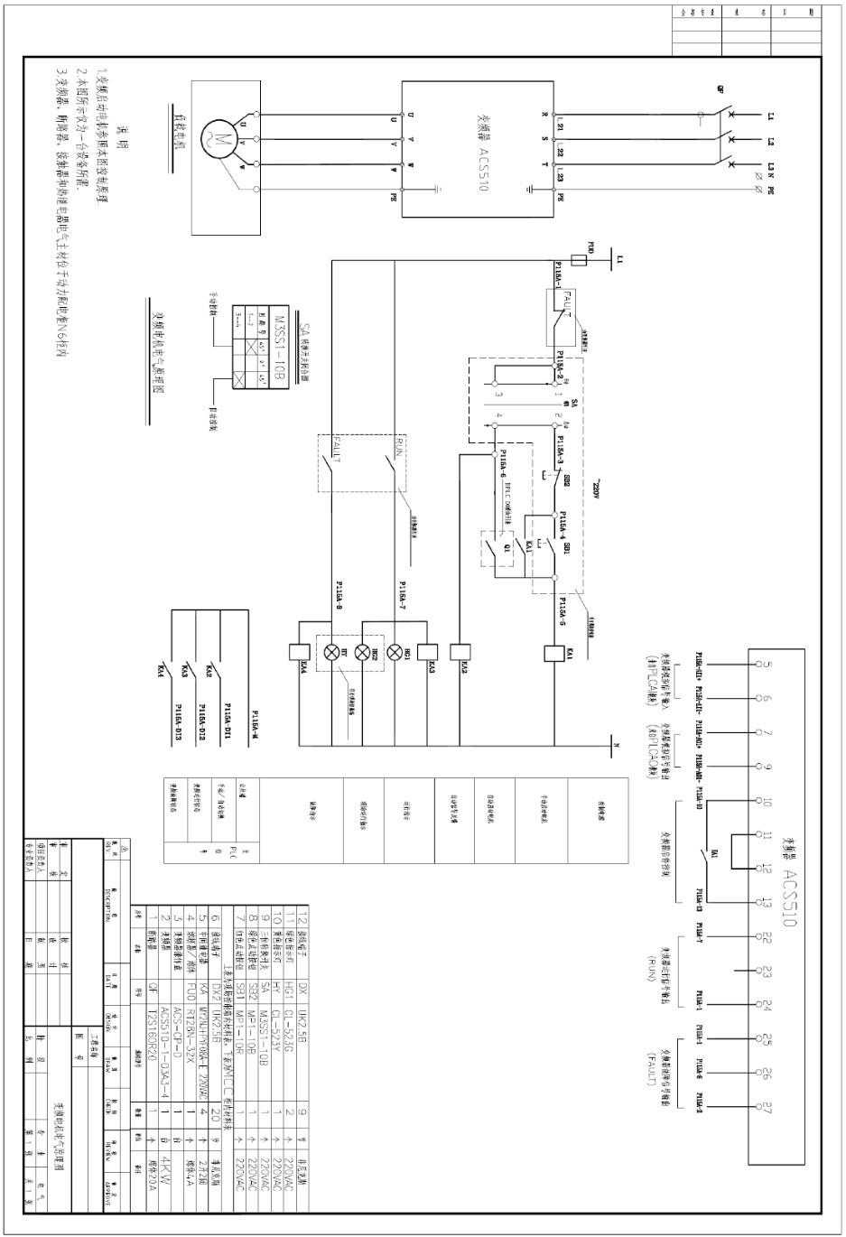
七、实例说明
现有一台三相异步电动机需要采用ACS510变频器,上位机PLC(S7-300)能够读取变频器运行时的频率(4~20MA),同时
PLC能够控制电机运行时的频率。
电机参数如下:电机额定功率4KW、功率因数0.88、效率85%、额定电流8.1A、额定电压AC380V角形接法50Hz、电机转速
2880r/min
①变频器参数设定
变频器内部参数设定如下:

②PLC程序
模拟量采集程序

模拟量输出程序

PID控制程序

上位机WINCC程序略
③电气图纸及材料表

